R-168-1 – Formigine


R-168-1 – Formigine

Vendita

500.000€

  • Appartamento Indipendente Formigine
  • Appartamento Indipendente Formigine
  • Appartamento Indipendente Formigine
  • Appartamento Indipendente Formigine

Riferimento :

 R-168-1

Share

Aggiunto ai favoriti

Favoriti

Camere

3

Bagni

2

Metratura

163 Mq

Descrizione

Vendita Appartamento Indipendente Formigine

EUROCASA FORMIGINE – FORMIGINE R-168-1 – 059/7470193 – formigine@eurocasagroup.it – – – > 

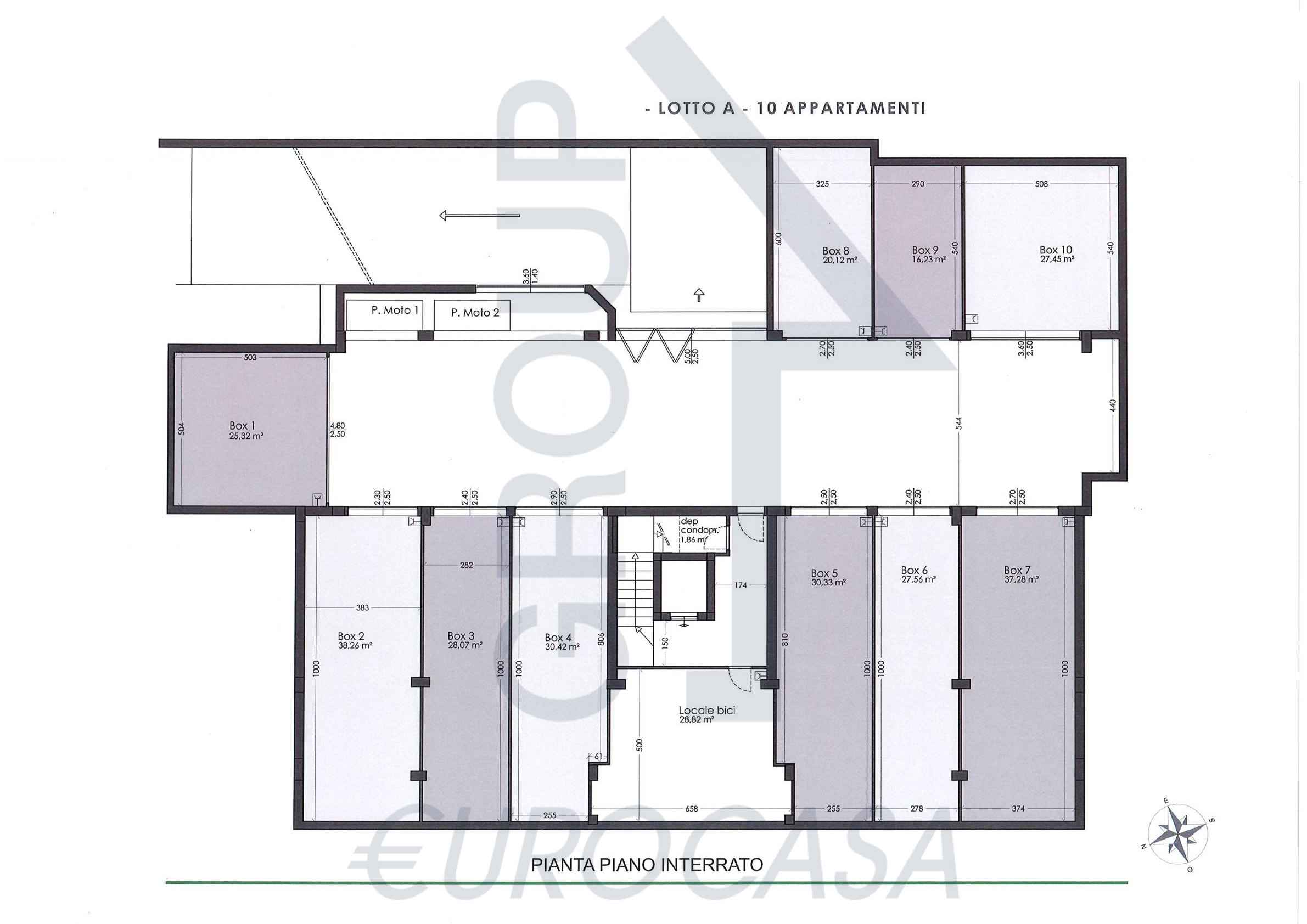
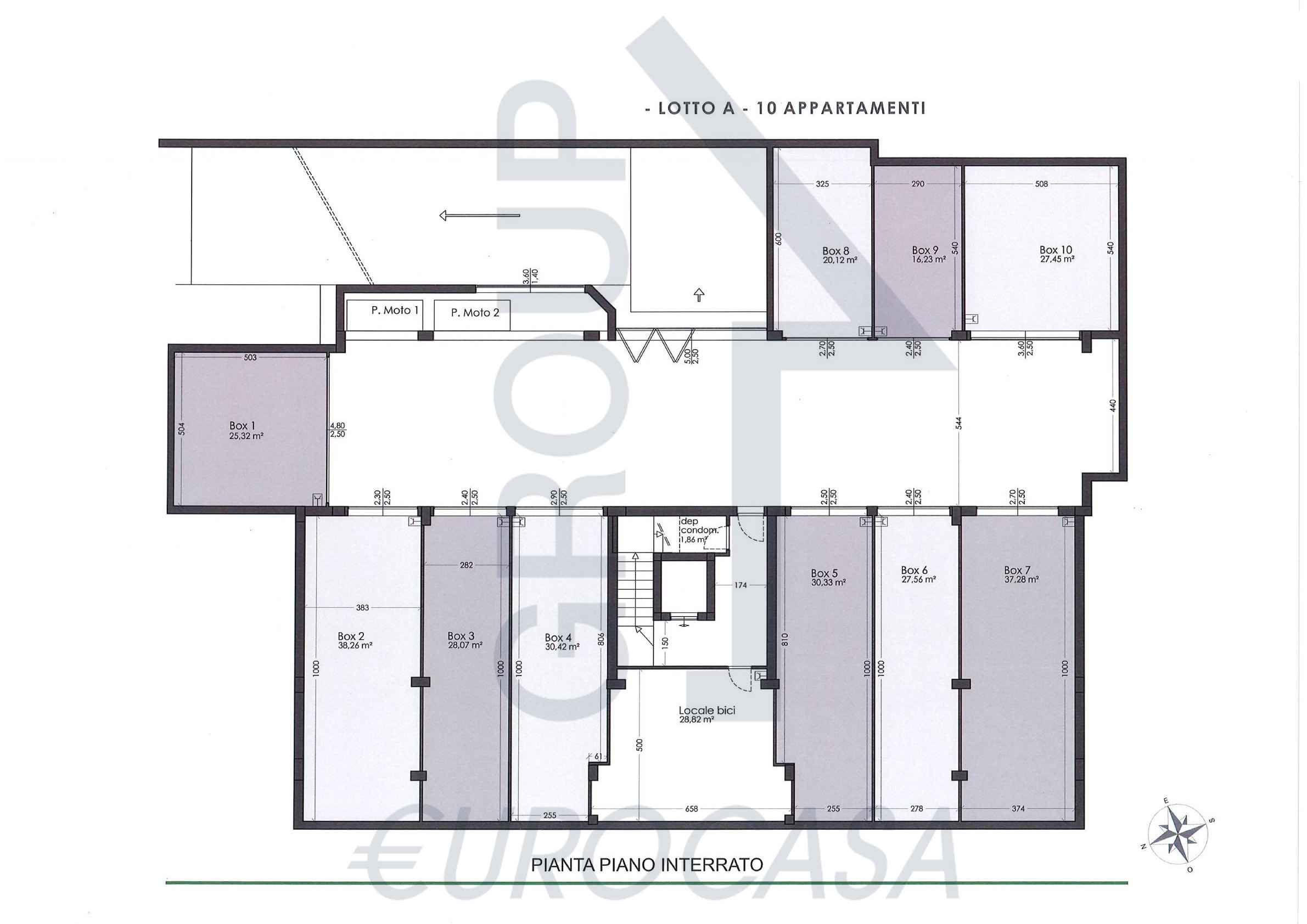
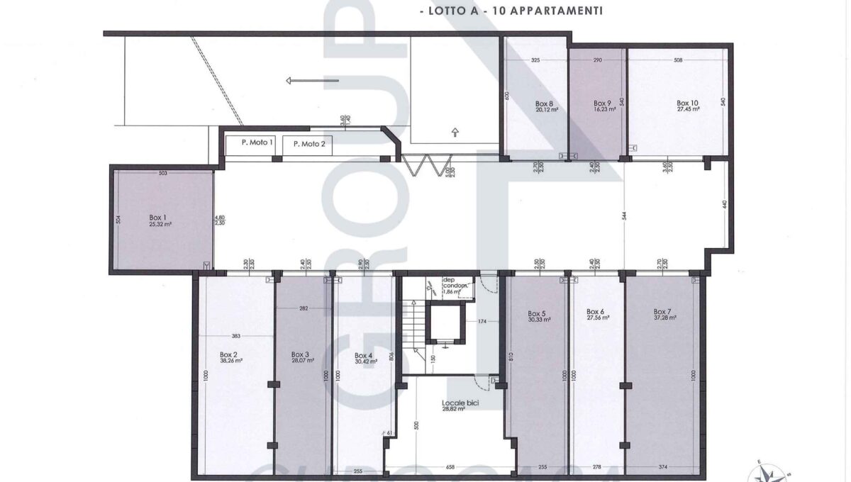
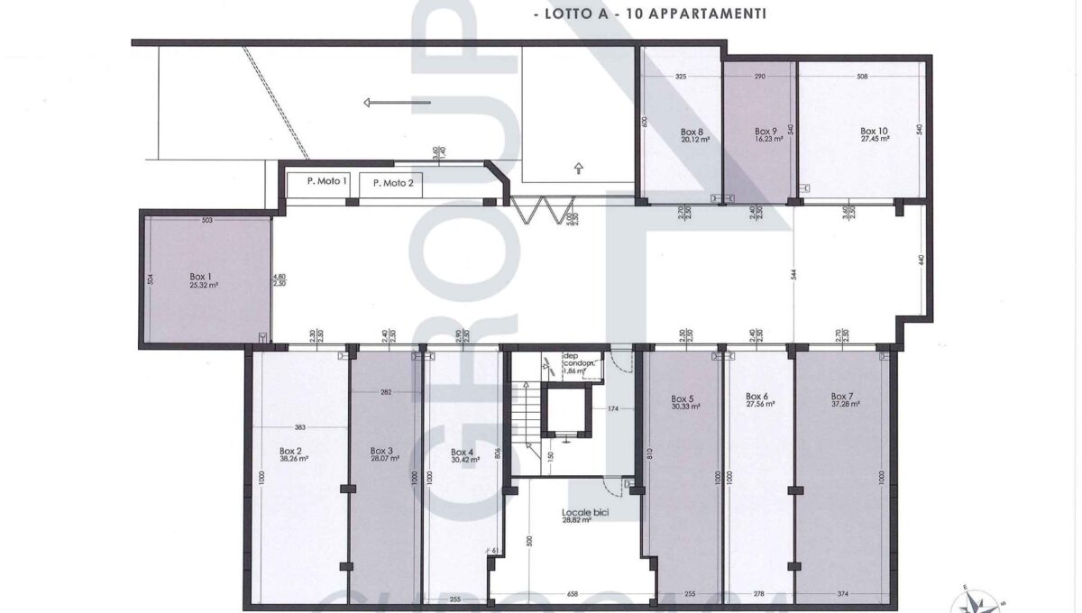
Caratteristiche:  complesso da sole 9 unità abitative, vicino al parco e ai servizi ad  elevato rendimento energetico. Un edificio antisismico certificato in CLASSE ENERGETICA NZEB.  – – – > 

Descrizione: Elegante appartamento con ingresso indipendente e giardino privato comp.to da:  ingresso in ampio SOGGIORNO, cucina, 2 bagni, zona notte con 2 CAMERE, CANTINA H 2,50  (UTILIZZABILE COME TERZA CAMERA),  centrale termica esterna, giardino privato di 180 mq e BOX n° 2 DI 44 MQ.  . Consegna marzo 2027 – – – >

Dotazioni: Edificio Antisismico, Classe energetica A4 NZEB, Impianti autonomi con pompa di calore, Fotovoltaico, Riscaldamento a pavimento, Ventilazione meccanica con recuperatore di calore, Tapparelle motorizzate, Predisposizione condizionamento. 

Non siamo soliti fissare appuntamenti direttamente sull’immobile senza aver fissato prima un appuntamento conoscitivo in Agenzia. Lavoriamo in sicurezza seguendo tutte le attuali direttive.

Per informazioni, contattateci su WhatsApp al 375/5309216 o mandate un messaggio da Facebook o messenger dalla nostra pagina https://www.facebook.com/eurocasa/ < – – –

Informazioni

  • prezzo: 500000€
  • tipologia: Vendita Appartamento Indipendente
  • metratura: 163
  • camere: 3
  • bagni: 2
  • classe energetica: A4
  • zona: - Formigine

Richiedi informazioni su questo immobile

Contattaci su WhatsApp

Scrivici una E-Mail

Potrebbe interessarti anche...

Lascia un commento

Il tuo indirizzo email non sarà pubblicato. I campi obbligatori sono contrassegnati *

Scrivici su WhatsApp